New Campground Being Built Near Kings Island
From 1972 until 2004, Kings Island provided guests with the opportunity to stay at a campgrounds resort. It seems that guests may once again have that option.
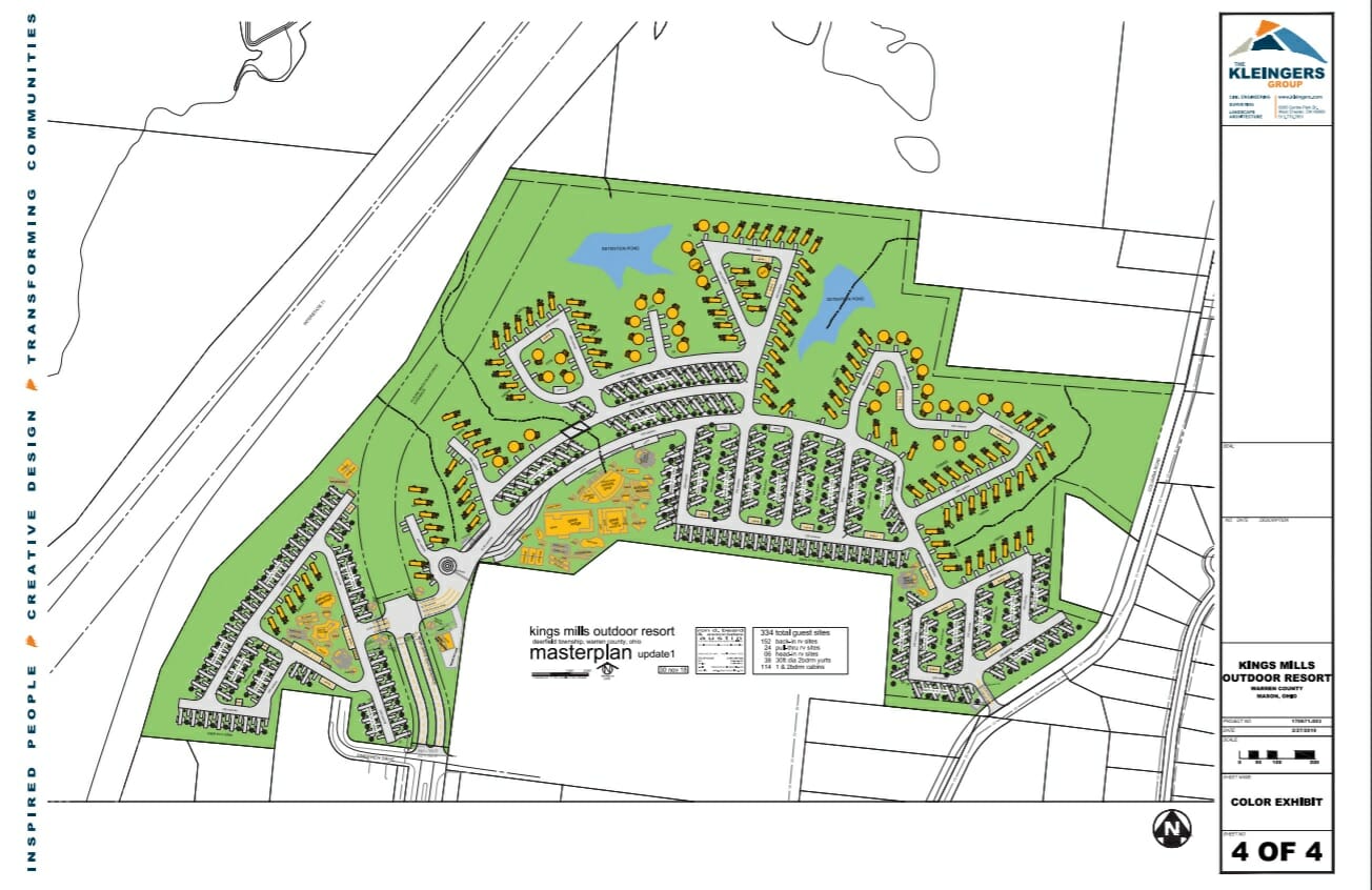
The proposed Kings Mills Outdoor Resort is a 52.7 acre resort directly adjacent to Interstate-71. The plan calls for 334 sites consisting of 182 sites for recreational vehicles, 114 sites for 1/2 bedroom cabins and 38 3o-foot diameter two-bedroom tents.

The site is behind a McDonald’s restaurant, directly off the Route 741-Kings Mills exit from Interstate 71.
The proposed development was submitted by Richard Haglage. The plans call for the construct ion of on-site lodges, theater, gift shops, convenience stores, event center, game courts, and swimming pools, with parking spaces.
The plan was recommended for approval with conditions by the county. The proposal could be reviewed by township planning officials in April and voted for approval by the township trustees in May.
The new campgrounds will not be owned or operated by the park.
For tickets and more information, visit the official Kings Island website by clicking here.
Stay connected with Coaster Nation!
facebook: facebook.com/coasternation
twitter: @Coaster_Nation
Subscribe on YouTube!
MORE GREAT VIDEOS!

